Мы используем куки-файлы. Соглашение об использовании
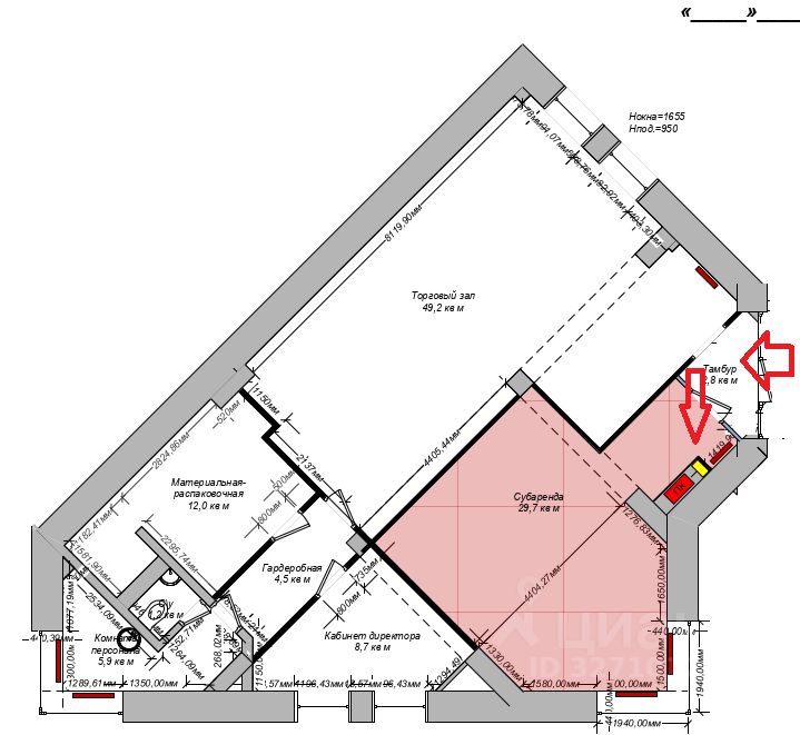
Площадь29,7 м²
Этаж1 из 5
Отчёт о привлекательности объектаУзнайте, насколько помещение и район подходят для вашего бизнеса
Что входит в отчёт
  • Охват населения
  • Пешеходный трафик
  • Автомобильный трафик
  • Средний бюджет семьи по району
  • Арендные ставки рядом
  • Точки притяжения
  • Конкуренты в радиусе 1 км
  • Рекомендации по выбору места для бизнеса
Сдается помещение площадью 29,7 кв.м. (смотрите план и фото). В арендную плату все включено. Рассмотрим все предложения, кроме общепита. Звонки принимаются в рабочие дни с пн-пт с 9.15 до 18.00.
lock

Войдите или зарегистрируйтесь
для просмотра информации

Просматривайте условия сделки и всю информацию об объекте
Сохраняйте фильтры в поиске и не вводите заново
Доступ к избранному с любого устройства
Неограниченное добавление в избранное
Позвоните автору
Вам ответят на все вопросы
Остались вопросы по объявлению?
Позвоните владельцу объявления и уточните необходимую информацию.
  • Инфраструктура
  • Похожие рядом
  • Площадь участка0 га
  • Общая площадь29,7 м²
  • Статус участкаВ собственности
Помощь надёжных риелторов
Риелтор партнёр Циан поможет купить или продать любую недвижимость
Отдел арендыРигла
  • Документы проверены
  • 10 лет 5 месяцев на Циане
  • 123 объявления
  • 60 000 ₽/мес.

    Субаренда (от года), минимальный срок аренды 12 месяцев, обеспечительный платёж 60000 ₽, предоплата за 1 месяц

    845 $/мес.
    726 /мес.
    Цена за метр
    24 243 ₽ в год
    Налог
    НДС включен: 10 819 ₽
    Комиссия
    нет
    Коммунальные платежи
    включены
    Эксплуатационные расходы
    включены
    Отдел арендыРигла
    Документы проверены