Мы используем куки-файлы. Соглашение об использовании
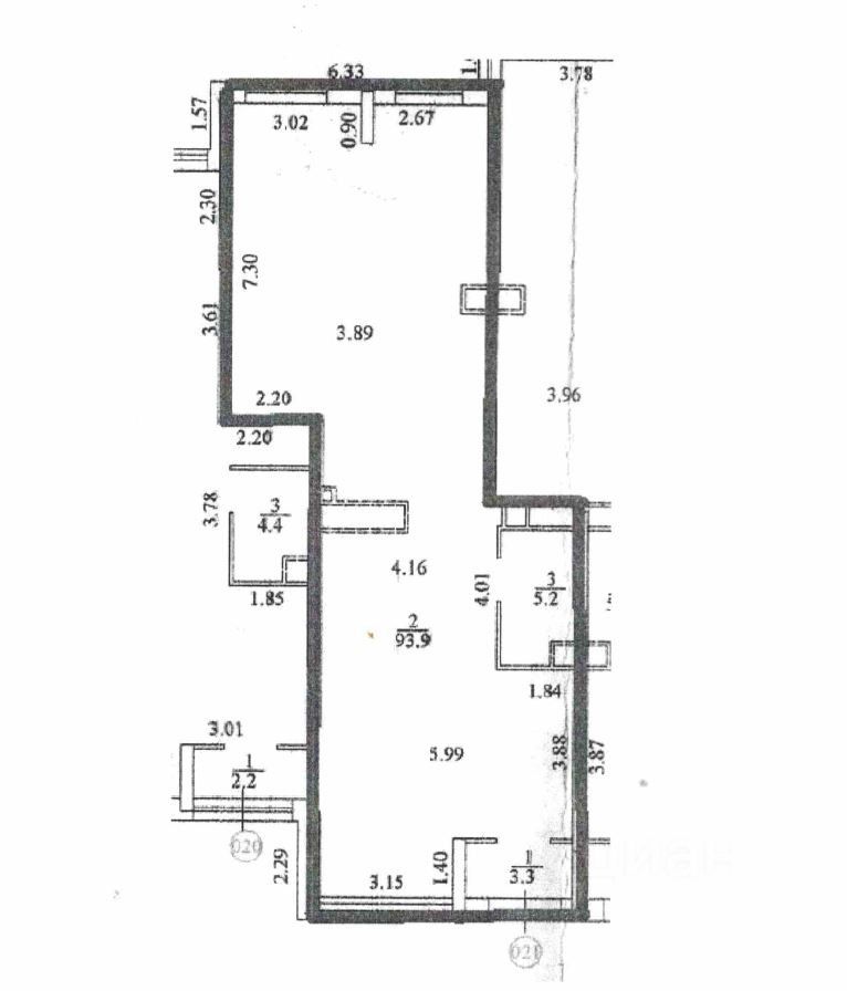
Помещение свободного назначения, 102,5 м²

Продается помещение свободного назначения, 102,5 м²

Площадь102,5 м²
Этаж1 из 25
Отчёт о привлекательности объектаУзнайте, насколько помещение и район подходят для вашего бизнеса
Что входит в отчёт
  • Охват населения
  • Пешеходный трафик
  • Автомобильный трафик
  • Средний бюджет семьи по району
  • Арендные ставки рядом
  • Точки притяжения
  • Конкуренты в радиусе 1 км
  • Рекомендации по выбору места для бизнеса
Продается нежилое помещение (street retail), расположенное на первом этаже многоэтажного жилого дома в шаговой доступности от м.Новокосино (10 мин.пешком). Площадь 102 метра, высота потолков 3.4м. Прекрасное расположение внутри густонаселенного массива, высокий пешеходный трафик, близость к первой линии Носовихинского шоссе, отдельный фасадный вход, круглосуточный доступ, парковка вдоль здания (удобно для разгрузки), витринные окна, место для вывески, возможность адаптировать под любой бизнес. По соседству с сетевыми операторами (ozon, wildberries , буханка, яндекс маркет, вкусвилл и т.д.). МАП в 2025 году 155000 руб. В собственности с 2017 года. Оперативные показы, быстрый выход на сделку.
lock

Войдите или зарегистрируйтесь
для просмотра информации

Просматривайте условия сделки и всю информацию об объекте
Сохраняйте фильтры в поиске и не вводите заново
Доступ к избранному с любого устройства
Неограниченное добавление в избранное
Позвоните автору
Вам ответят на все вопросы
Остались вопросы по объявлению?
Позвоните владельцу объявления и уточните необходимую информацию.
  • Инфраструктура
  • Похожие рядом
  • Тип зданияЖилой дом
  • Общая площадь76 393 м²
Приточная вентиляция
Местное кондиционирование
Центральное отопление
Гидрантная система пожаротушения
Помощь надёжных риелторов
Риелтор партнёр Циан поможет купить или продать любую недвижимость
Автор объявления
ID 316273
  • 13 лет 2 месяца на Циане
  • 21 900 000 ₽
    290 664 $
    247 889
    Цена за метр
    213 659 ₽
    Налог
    УСН
    Автор объявления
    ID 316273