Мы используем куки-файлы. Соглашение об использовании
Проверено в Росреестре
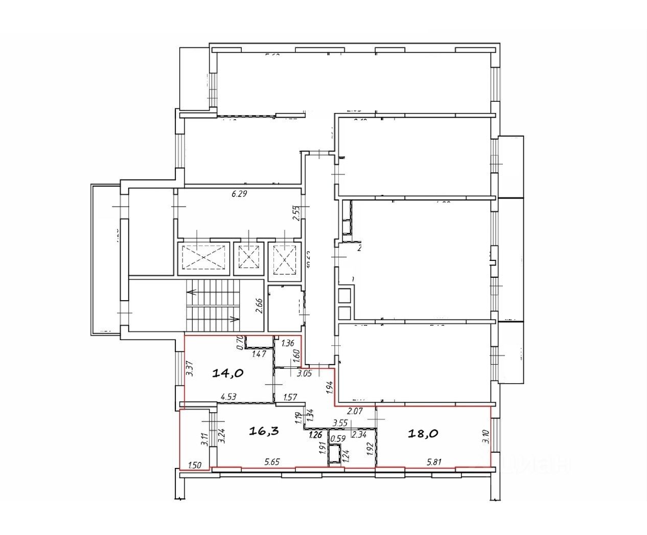
Общая площадь64,3 м²
Жилая площадь34,3 м²
Площадь кухни14 м²
Этаж3 из 25
Год постройки2018
Продается уютная квартира, в современном монолитном доме Общая площадь: 64,3 кв.м., состоит из 2х комнат: 18 кв.м. и 16,3 кв.м. с лоджией, кухня: 14 кв.м. ТРАНСПОРТНАЯ ДОСТУПНОСТЬ: - 14 минут пешком до МДЦ "Никольское". - 18 минут пешком до станции метро "Новокосино". - Рядом с домом остановки транспорта - Для автолюбителей выезд на шоссе Энтузиастов, Носовихинское шоссе, МКАД ИНФРАСТРУКТУРА: - Множество сетевых магазинов в пешей доступности. - Школа и детский сад в 5-ти минутах. - Парк в 5-ти минутах. - Во дворе строится подземный паркинг. О ДОМЕ: - Монолитный дом 2018 года постройки. - Установлены современные лифты: Грузовой и 2 больших вместительных пассажирских. - Консьерж. УСЛОВИЯ ПРОДАЖИ: - Свободная продажа. - Один взрослый собственник. - Возможна ипотека. Идеальный вариант для комфортной жизни в развитом районе с отличной инфраструктурой!
Позвоните автору
Вам ответят на все вопросы

О квартире

Тип жилья

Вторичка

Общая площадь

64,3 м²

Жилая площадь

34,3 м²

Площадь кухни

14 м²

Высота потолков

2,8 м

Санузел

1 раздельный

Балкон/лоджия

1 балкон

Вид из окон

На улицу и двор

Ремонт

Без ремонта

Перепланировка

Не было

О доме

Год постройки

2018

Количество лифтов

1 пассажирский, 1 грузовой

Тип дома

Монолитный

Тип перекрытий

Железобетонные

Подъезды

10

О подъезде

Есть мусоропровод, консьерж

Парковка

Наземная

Отопление

Центральное

Аварийность

Нет

Юридические особенности

Несовершеннолетние собственники

Нет

Материнский капитал при покупке

Не использовался

Спросите умного помощника
Получите экспертное мнение о жилье
Информация из Росреестра
Обременения
Нет
Площадь
64,3 м²
Этаж
3
Собственников
1
Кадастровый номер
50:48:0030303:***

Расположение

Ипотечный калькулятор
  • Базовая
  • Семейная
  • ИТ-ипотека
  • 20%
  • 30%
  • 40%
  • 50%
лет
  • 10 лет
  • 20 лет
  • 30 лет
Загружаем предложения от застройщика и банков
13 500 000 ₽
Эксперт от ЦианаПомощь с поиском и гарантия безопасной сделки
Цена за метр
209 953 ₽/м²
Условия сделки
свободная продажа
Ипотека
возможна
Агентство недвижимости
Суперагент